Viridian

Grand Proportions & Massive Suites

Renowned for having some of the largest Master Suites in our entire collection. Every model in this series features a dedicated first-floor Gallery/Lounge, providing a true upper-level retreat.

Select the Viridian 32 or 39 to elevate your entertaining with a stunning void over the dining area, creating a light-filled heart to the home.

Need room for extended family?
The expansive ground floors of the Viridian 39 & 43 offer the perfect footprint to convert the front living and office areas into a private Guest Suite. Use this versatile design as your canvas, and let's tailor it to your needs.

Select Floor Plan Size

28
32
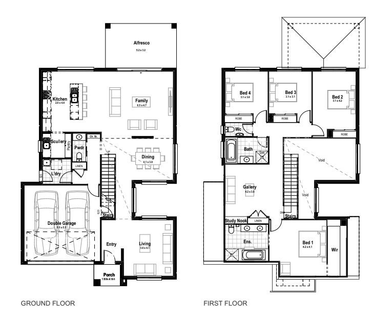
39
43

Viridian 28

4
2.5
2

Viridian 32

4
2.5
2

Viridian 39

4
2.5
2

Viridian 43

4
2.5
2

House dimensions

House Area 264.05m²
House Length 18.82m
House Width 10.67m

House dimensions

House Area 310.96m²
House Length 19.78m
House Width 10.79m

House dimensions

House Area 360.85m²
House Length 20.86m
House Width 13.07m

House dimensions

House Area 400m²
House Length 22.90m
House Width 12.59m
House Type Double Storey
House Type Double Storey
House Type Double Storey
House Type Double Storey
Viridian 28 Home Design Floor Plan
Viridian 32 Home Design Floor Plan
Viridian 39 Home Design Floor Plan
Viridian 43 Home Design Floor Plan

STANDARD INCLUSIONS, NOT "STANDARD UPGRADES"

The "Little" Things We Include, That Cost Big Elsewhere.

Many builders keep their base prices low by stripping out the essentials, only to charge you for them later. We believe your home should be liveable from day one. That’s why our ‘H2 Designer’ inclusions package comes standard with features others classify as upgrades.

Enjoy 2590mm ceilings on ‘both’ levels (not just the ground floor), 20mm stone benchtops throughout the kitchen, laundry, and bathrooms, and a fully tiled concrete slab for your alfresco. We even include the finishing touches like fly screens, LED downlights, mirrored sliding robes with drawers, and premium Fisher & Paykel appliances. Don’t get caught out by a “base price” that isn’t real.

View H2 Designer Inclusions

THREE TIERS OF EXCELLENCE

Designed for Your Purpose. Built for Your Life.

We’ve simplified our inclusion levels to match your specific goals, ensuring you never pay for what you don’t need.

  • H1 Smart: The ultimate cost-effective solution, perfect for investors seeking durability and value without compromising quality.

  • H2 Designer: Our most popular choice for owner-occupiers. A comprehensive package featuring the premium finishes you actually want, included as standard.

  • H3 Luxury: For those who want it all. High-end indulgence, top-tier fixtures, and a finish that rivals any custom home.

THE TRUTH ABOUT PRICING

Confused by Quotes?
Let Me Compare Them.

It is incredibly difficult to compare builder quotes side-by-side. One might look cheaper but excludes site costs, flooring, alfresco slabs, or driveways. Another might miss essential electrical upgrades. If you have a quote from another builder, send it to me.

I will provide a free, no-obligation comparison against a Hudson Homes equivalent. I’ll highlight exactly what is missing from their quote and show you what the ‘real’ finished cost will look like, ensuring you have a complete picture before you sign anything.

Request a Quote Comparison