Rosewood

The Perfect Fit for Stepped Blocks

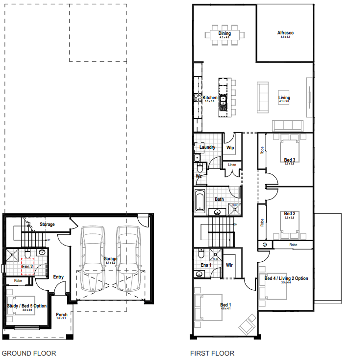
Specifically engineered for blocks that feature a mid-block step or retaining wall rising towards the rear. Instead of expensive earthworks to flatten the site, the Rosewood is designed to bridge the gap.

The lower level sits comfortably at street level, while the upper living areas extend back over the step, allowing for a seamless connection from your kitchen and family room directly out onto your elevated backyard.

Enquire now to begin using this professionally designed footprint as your base and tailor it to your lifestyle.

Select Floor Plan Size

23
31

Rosewood 23

4
3
2

Rosewood 31

5
3
2

House dimensions

House Area 21.95m²
House Length 17.99m
House Width 10.10m

House dimensions

House Area 285.52m²
House Length 24.09m
House Width 10.86m
House Type Split Level
House Type Split Level
Rosewood 23 Split Level Home
Rosewood 30 Split Level Home Design Qld

STANDARD INCLUSIONS, NOT "STANDARD UPGRADES"

The "Little" Things We Include, That Cost Big Elsewhere.

Many builders keep their base prices low by stripping out the essentials, only to charge you for them later. We believe your home should be liveable from day one. That’s why our ‘H2 Designer’ inclusions package comes standard with features others classify as upgrades.

Enjoy 2590mm ceilings on ‘both’ levels (not just the ground floor), 20mm stone benchtops throughout the kitchen, laundry, and bathrooms, and a fully tiled concrete slab for your alfresco. We even include the finishing touches like fly screens, LED downlights, mirrored sliding robes with drawers, and premium Fisher & Paykel appliances. Don’t get caught out by a “base price” that isn’t real.

View H2 Designer Inclusions

THREE TIERS OF EXCELLENCE

Designed for Your Purpose. Built for Your Life.

We’ve simplified our inclusion levels to match your specific goals, ensuring you never pay for what you don’t need.

  • H1 Smart: The ultimate cost-effective solution, perfect for investors seeking durability and value without compromising quality.

  • H2 Designer: Our most popular choice for owner-occupiers. A comprehensive package featuring the premium finishes you actually want, included as standard.

  • H3 Luxury: For those who want it all. High-end indulgence, top-tier fixtures, and a finish that rivals any custom home.

THE TRUTH ABOUT PRICING

Confused by Quotes?
Let Me Compare Them.

It is incredibly difficult to compare builder quotes side-by-side. One might look cheaper but excludes site costs, flooring, alfresco slabs, or driveways. Another might miss essential electrical upgrades. If you have a quote from another builder, send it to me.

I will provide a free, no-obligation comparison against a Hudson Homes equivalent. I’ll highlight exactly what is missing from their quote and show you what the ‘real’ finished cost will look like, ensuring you have a complete picture before you sign anything.

Request a Quote Comparison