Rose

Grand Scale Living with a Statement Entry.

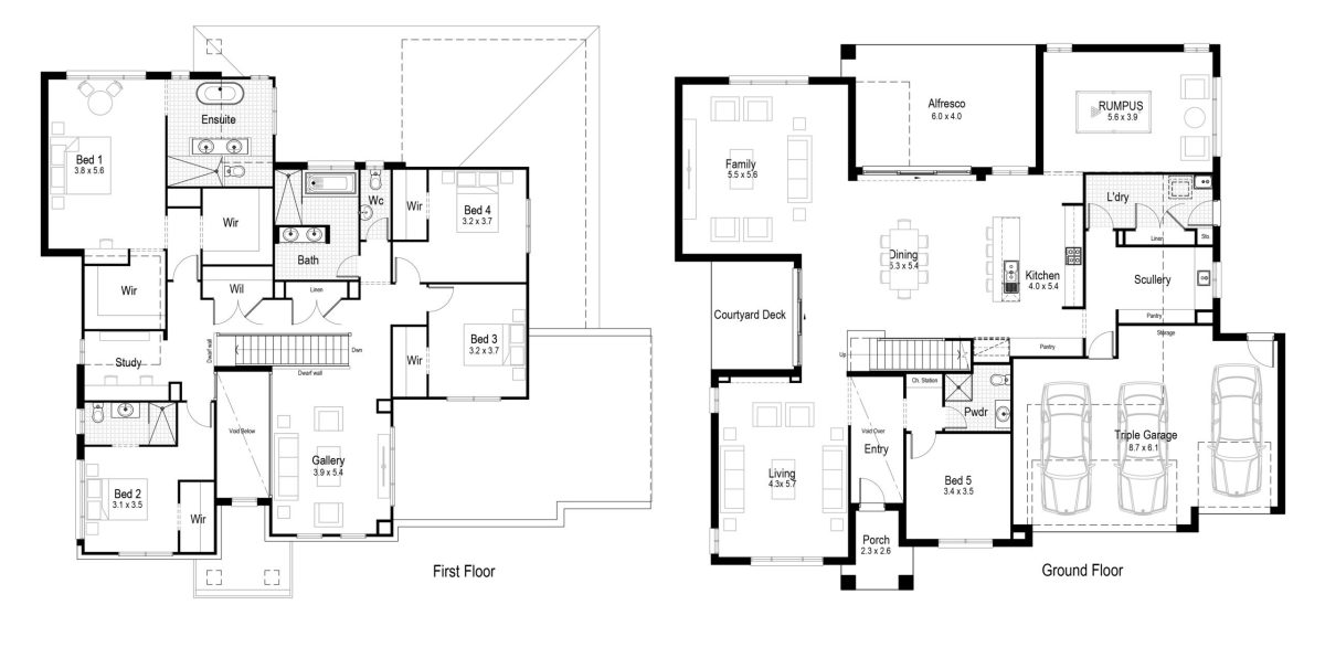
First impressions matter. The Rose captivates immediately with a stunning void over the entry, creating a sense of light and space that defines this executive residence.

Designed for flexibility, the ground floor offers a dedicated home office, which transforms into a genuine 5th bedroom in the larger Rose 43 & 53 variants.

With expansive rear living and a private upstairs sleep zone, it is the ultimate family entertainer. Love the void but need to tweak the layout? Let's modify this grand design to fit your lifestyle perfectly.

Select Floor Plan Size

34
38
43
53

Rose 34

4
2
2

Rose 38

4
2.5
2

Rose 43

4
2.5
2

Rose 53

4
2.5
3

House dimensions

House Area 318.59m²
House Length 15.95m
House Width 15.11m

House dimensions

House Area 354.91m²
House Length 15.83m
House Width 17.39m

House dimensions

House Area 401.51m²
House Length 16.31m
House Width 17.39m

House dimensions

House Area 492.82m²
House Length 17.99m
House Width 20.27m
House Type Double Storey
House Type Double Storey
House Type Double Storey
House Type Double Storey
Rose 34 Home Design Floor Plan
Rose 38 Home Design Floor Plan
Model
Model

STANDARD INCLUSIONS, NOT "STANDARD UPGRADES"

The "Little" Things We Include, That Cost Big Elsewhere.

Many builders keep their base prices low by stripping out the essentials, only to charge you for them later. We believe your home should be liveable from day one. That’s why our ‘H2 Designer’ inclusions package comes standard with features others classify as upgrades.

Enjoy 2590mm ceilings on ‘both’ levels (not just the ground floor), 20mm stone benchtops throughout the kitchen, laundry, and bathrooms, and a fully tiled concrete slab for your alfresco. We even include the finishing touches like fly screens, LED downlights, mirrored sliding robes with drawers, and premium Fisher & Paykel appliances. Don’t get caught out by a “base price” that isn’t real.

View H2 Designer Inclusions

THREE TIERS OF EXCELLENCE

Designed for Your Purpose. Built for Your Life.

We’ve simplified our inclusion levels to match your specific goals, ensuring you never pay for what you don’t need.

  • H1 Smart: The ultimate cost-effective solution, perfect for investors seeking durability and value without compromising quality.

  • H2 Designer: Our most popular choice for owner-occupiers. A comprehensive package featuring the premium finishes you actually want, included as standard.

  • H3 Luxury: For those who want it all. High-end indulgence, top-tier fixtures, and a finish that rivals any custom home.

THE TRUTH ABOUT PRICING

Confused by Quotes?
Let Me Compare Them.

It is incredibly difficult to compare builder quotes side-by-side. One might look cheaper but excludes site costs, flooring, alfresco slabs, or driveways. Another might miss essential electrical upgrades. If you have a quote from another builder, send it to me.

I will provide a free, no-obligation comparison against a Hudson Homes equivalent. I’ll highlight exactly what is missing from their quote and show you what the ‘real’ finished cost will look like, ensuring you have a complete picture before you sign anything.

Request a Quote Comparison