Robin

The Shallow Block Specialist.

Finally, a design that doesn't eat up your entire backyard. The Robin series is specifically engineered for shallow blocks, featuring an ultra-compact depth that is rarely found in the market.

With designs like the Robin 5, 6 & 7 measuring just over 10 metres in length, you can fit a substantial double-storey home on a short block and still retain a massive backyard or pool area.

Need something narrower? The Robin 8 switches gears to suit ultra-narrow 10m frontages. Whichever shape your block takes, this efficient footprint minimises earthworks and maximises open space. Let's see which Robin fits your land best!

Select Floor Plan Size

5
6
7
8

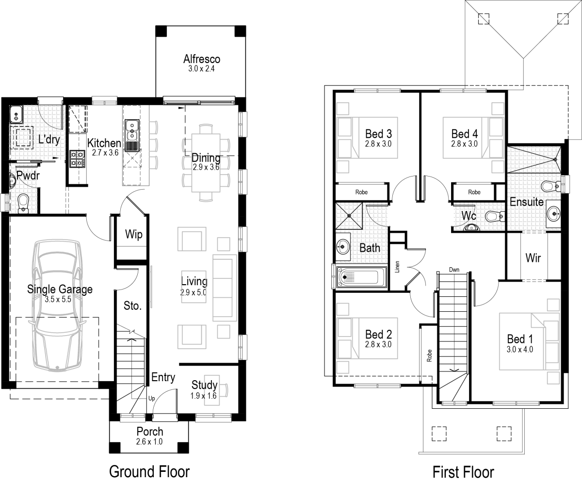
Robin 5

3
2.5
1

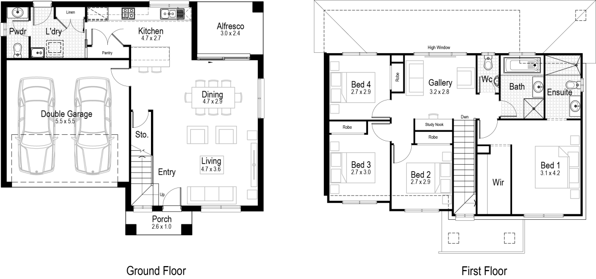
Robin 6

4
2.5
2

Robin 7

4
2.5
2

Robin 8

4
2.5
1

House dimensions

House Area 148.71m²
House Length 10.18m
House Width 12.84m

House dimensions

House Area 193.43m²
House Length 10.55m
House Width 11.87m

House dimensions

House Area 177.73m²
House Length 10.55m
House Width 11.15m

House dimensions

House Area 173.03m²
House Length 14.28m
House Width 8.15m
House Type Double Storey
House Type Double Storey
House Type Double Storey
House Type Double Storey
Robin 5 Home Design Floor Plan
Robin 6 Home Design Floor Plan
Robin 7 Home Design Floor Plan
Robin 8 Home Design Floor Plan

STANDARD INCLUSIONS, NOT "STANDARD UPGRADES"

The "Little" Things We Include, That Cost Big Elsewhere.

Many builders keep their base prices low by stripping out the essentials, only to charge you for them later. We believe your home should be liveable from day one. That’s why our ‘H2 Designer’ inclusions package comes standard with features others classify as upgrades.

Enjoy 2590mm ceilings on ‘both’ levels (not just the ground floor), 20mm stone benchtops throughout the kitchen, laundry, and bathrooms, and a fully tiled concrete slab for your alfresco. We even include the finishing touches like fly screens, LED downlights, mirrored sliding robes with drawers, and premium Fisher & Paykel appliances. Don’t get caught out by a “base price” that isn’t real.

View H2 Designer Inclusions

THREE TIERS OF EXCELLENCE

Designed for Your Purpose. Built for Your Life.

We’ve simplified our inclusion levels to match your specific goals, ensuring you never pay for what you don’t need.

  • H1 Smart: The ultimate cost-effective solution, perfect for investors seeking durability and value without compromising quality.

  • H2 Designer: Our most popular choice for owner-occupiers. A comprehensive package featuring the premium finishes you actually want, included as standard.

  • H3 Luxury: For those who want it all. High-end indulgence, top-tier fixtures, and a finish that rivals any custom home.

THE TRUTH ABOUT PRICING

Confused by Quotes?
Let Me Compare Them.

It is incredibly difficult to compare builder quotes side-by-side. One might look cheaper but excludes site costs, flooring, alfresco slabs, or driveways. Another might miss essential electrical upgrades. If you have a quote from another builder, send it to me.

I will provide a free, no-obligation comparison against a Hudson Homes equivalent. I’ll highlight exactly what is missing from their quote and show you what the ‘real’ finished cost will look like, ensuring you have a complete picture before you sign anything.

Request a Quote Comparison