Mulberry

Wide, Expansive, and Grand Acreage Living, Tailored to You

Designed to maximise wide frontages,
these homes capture the essence of acreage living.
Consider these floorplans your starting point, we can extend the wings, expand the alfresco, or reconfigure the layout to perfectly capture your property’s views.

Select Floor Plan Size

22
25
28
33
39

Mulberry 22

4
2
2

Mulberry 25

4
2
2

Mulberry 28

4
2
2

Mulberry 33

4
2.5
2

Mulberry 39

4
2.5
2

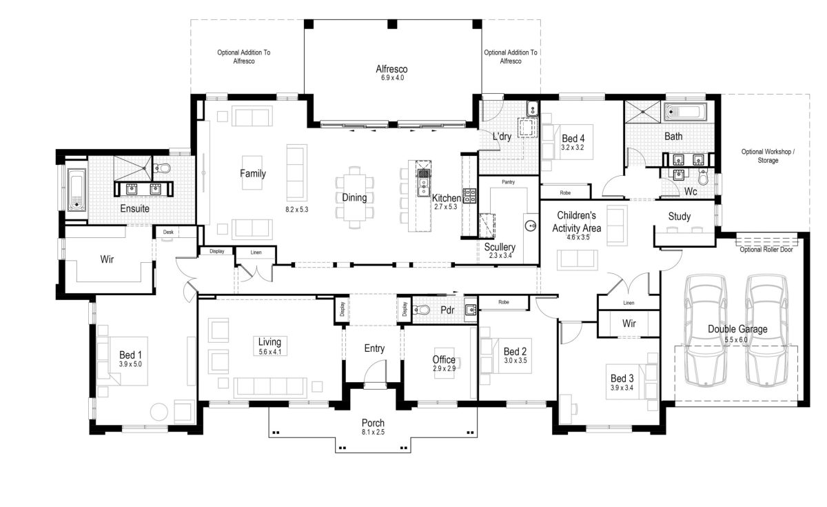
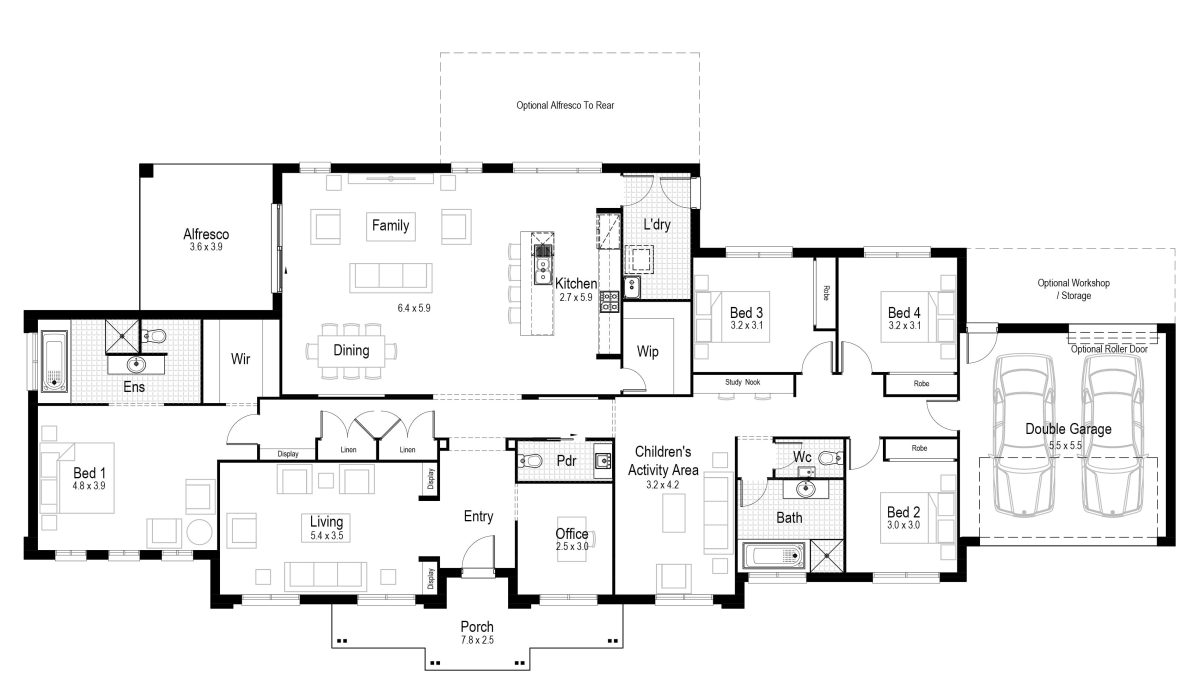
House dimensions

House Area 208.66m²
House Length 10.19m
House Width 25.19m

House dimensions

House Area 235.57m²
House Length 11.75m
House Width 25.67m

House dimensions

House Area 259.28m²
House Length 12.71m
House Width 27.83m

House dimensions

House Area 307.82m²
House Length 13.07m
House Width 31.07m

House dimensions

House Area 365.23m²
House Length 16.95m
House Width 29.51m
House Type Acreage
House Type Acreage
House Type Acreage
House Type Acreage
House Type Acreage
Mulberry 22 Home Design Floor Plan
Model
Mulberry 28 Home Design Floor Plan
Mulberry 33 Home Design Floor Plan
Mulberry 39 Home Design Floor Plan

STANDARD INCLUSIONS, NOT "STANDARD UPGRADES"

The "Little" Things That Cost Big Elsewhere.

Many builders keep their base prices low by stripping out the essentials, only to charge you for them later. We believe your home should be liveable from day one. That’s why our ‘H2 Designer’ inclusions package comes standard with features others classify as upgrades.

Enjoy 2590mm ceilings on ‘both’ levels (not just the ground floor), 20mm stone benchtops throughout the kitchen, laundry, and bathrooms, and a fully tiled concrete slab for your alfresco. We even include the finishing touches like fly screens, LED downlights, mirrored sliding robes with drawers, and premium Fisher & Paykel appliances. Don’t get caught out by a “base price” that isn’t real.

View H2 Designer Inclusions

THREE TIERS OF EXCELLENCE

Designed for Your Purpose. Built for Your Life.

We’ve simplified our inclusion levels to match your specific goals, ensuring you never pay for what you don’t need.

  • H1 Smart: The ultimate cost-effective solution, perfect for investors seeking durability and value without compromising quality.

  • H2 Designer: Our most popular choice for owner-occupiers. A comprehensive package featuring the premium finishes you actually want, included as standard.

  • H3 Luxury: For those who want it all. High-end indulgence, top-tier fixtures, and a finish that rivals any custom home.

THE TRUTH ABOUT PRICING

Confused by Quotes?
Let Me Compare Them.

It is incredibly difficult to compare builder quotes side-by-side. One might look cheaper but excludes site costs, flooring, alfresco slabs, or driveways. Another might miss essential electrical upgrades. If you have a quote from another builder, send it to me.

I will provide a free, no-obligation comparison against a Hudson Homes equivalent. I’ll highlight exactly what is missing from their quote and show you what the ‘real’ finished cost will look like, ensuring you have a complete picture before you sign anything.

Request a Quote Comparison