Mocha

The Ultimate Corner Block Solution.

Specifically engineered to master the corner block. This intelligent layout separates access points, placing the porch on one street frontage and the garage on the opposing 90-degree side.

This creates a stunning dual-street appeal that standard designs simply cannot achieve, while keeping your driveway private and your front entry welcoming.

Whether you need the compact efficiency of the Mocha 24 or the grandeur of the Mocha 35, this design ensures your home looks impressive from every angle. Let's work together to orient and modify this plan to perfectly suit your specific corner allotment.

Select Floor Plan Size

24
25
28
31
35

Mocha 24

4
2.5
2

Mocha 25

4
2.5
2

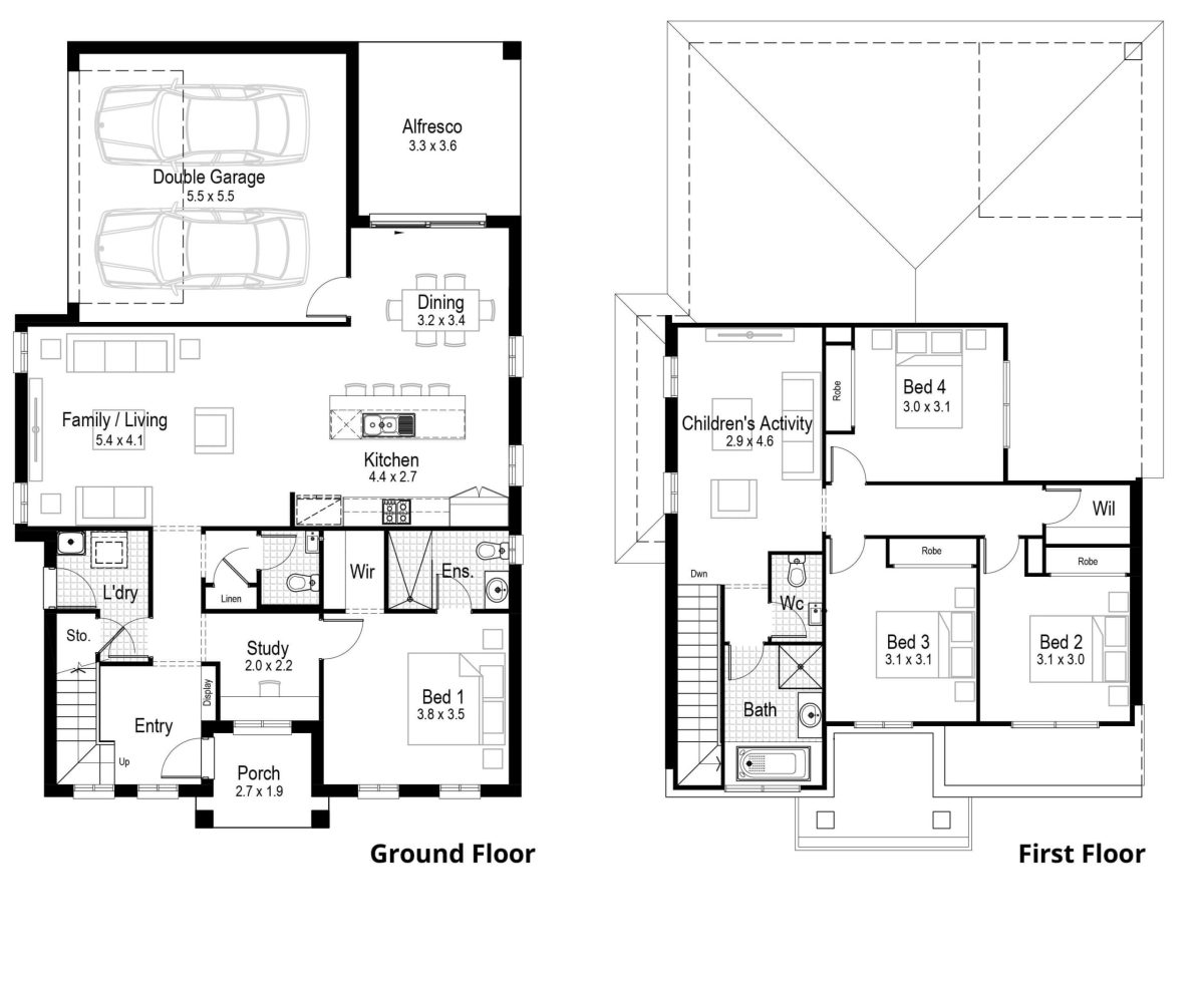
Mocha 28

4
2.5
2

Mocha 31

5
3.5
2

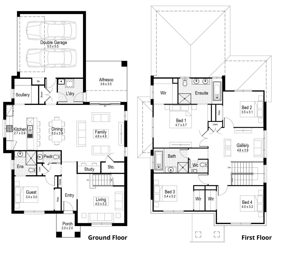
Mocha 35

5
3.5
2

House dimensions

House Area 225.93m²
House Length 21.11m
House Width 7.55m

House dimensions

House Area 232.26m²
House Length 16.24m
House Width 10.43m

House dimensions

House Area 260.09m²
House Length 16.91m
House Width 11.51m

House dimensions

House Area 288.55m²
House Length 19.71m
House Width 10.79m

House dimensions

House Area 321.36m²
House Length 22.35m
House Width 10.91m
House Type Double Storey
House Type Double Storey
House Type Double Storey
House Type Double Storey
House Type Double Storey
Mocha 24 Home Design Floor Plan
Mocha 25 Home Design Floor Plan
Mocha 28 Home Design Floor Plan
Mocha 31 Home Design Floor Plan
Mocha 35 Home Design Floor Plan

STANDARD INCLUSIONS, NOT "STANDARD UPGRADES"

The "Little" Things We Include, That Cost Big Elsewhere.

Many builders keep their base prices low by stripping out the essentials, only to charge you for them later. We believe your home should be liveable from day one. That’s why our ‘H2 Designer’ inclusions package comes standard with features others classify as upgrades.

Enjoy 2590mm ceilings on ‘both’ levels (not just the ground floor), 20mm stone benchtops throughout the kitchen, laundry, and bathrooms, and a fully tiled concrete slab for your alfresco. We even include the finishing touches like fly screens, LED downlights, mirrored sliding robes with drawers, and premium Fisher & Paykel appliances. Don’t get caught out by a “base price” that isn’t real.

View H2 Designer Inclusions

THREE TIERS OF EXCELLENCE

Designed for Your Purpose. Built for Your Life.

We’ve simplified our inclusion levels to match your specific goals, ensuring you never pay for what you don’t need.

  • H1 Smart: The ultimate cost-effective solution, perfect for investors seeking durability and value without compromising quality.

  • H2 Designer: Our most popular choice for owner-occupiers. A comprehensive package featuring the premium finishes you actually want, included as standard.

  • H3 Luxury: For those who want it all. High-end indulgence, top-tier fixtures, and a finish that rivals any custom home.

THE TRUTH ABOUT PRICING

Confused by Quotes?
Let Me Compare Them.

It is incredibly difficult to compare builder quotes side-by-side. One might look cheaper but excludes site costs, flooring, alfresco slabs, or driveways. Another might miss essential electrical upgrades. If you have a quote from another builder, send it to me.

I will provide a free, no-obligation comparison against a Hudson Homes equivalent. I’ll highlight exactly what is missing from their quote and show you what the ‘real’ finished cost will look like, ensuring you have a complete picture before you sign anything.

Request a Quote Comparison