Mauve

The Tri-Level Solution for Uphill Slopes

Engineered specifically for blocks that slope upwards from the street. The Mauve utilizes a clever tri-level design to climb the gradient of your land, keeping earthworks to a minimum.

Unlike pole homes, this design features a stepped concrete slab, allowing the rear mid-level to sit solidly on the ground. This creates a seamless connection to your backyard without the need for unsightly sub-floor voids.

Enquire now to begin using this professionally designed footprint as your base and tailor it to your lifestyle.

Select Floor Plan Size

24
28
32
35

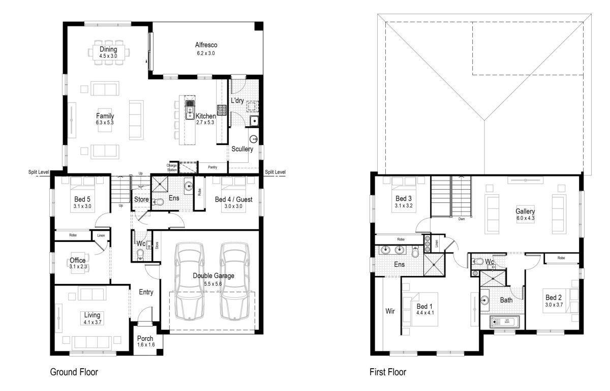
Mauve 24

4
2.5
2

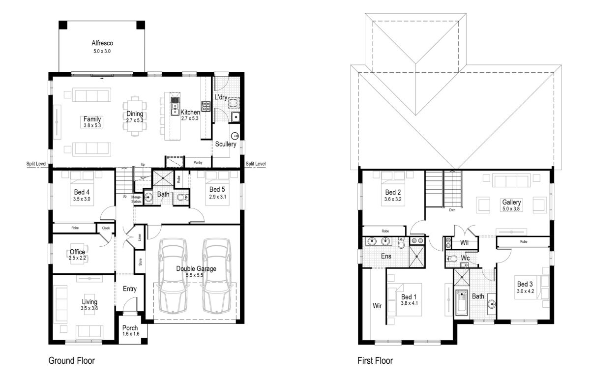
Mauve 28

5
2.5
2

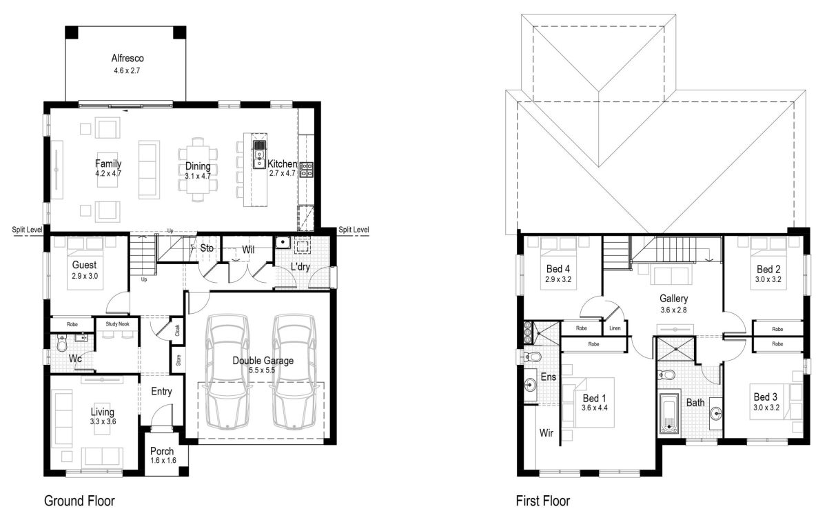
Mauve 32

5
3
2

Mauve 35

5
3.5
2

House dimensions

House Area 224.24m²
House Length 14.27m
House Width 10.91m

House dimensions

House Area 259.24m²
House Length 17.15m
House Width 11.15m

House dimensions

House Area 298.07m²
House Length 18.83m
House Width 11.39m

House dimensions

House Area 328.66m²
House Length 18.83m
House Width 11.99m
House Type Split Level
House Type Split Level
House Type Split Level
House Type Split Level
Mauve 24 Standard 1 Scaled
Mauve 28 Standard Scaled
Mauve 32 Standard Scaled
Mauve 35 Standard Scaled

STANDARD INCLUSIONS, NOT "STANDARD UPGRADES"

The "Little" Things We Include, That Cost Big Elsewhere.

Many builders keep their base prices low by stripping out the essentials, only to charge you for them later. We believe your home should be liveable from day one. That’s why our ‘H2 Designer’ inclusions package comes standard with features others classify as upgrades.

Enjoy 2590mm ceilings on ‘both’ levels (not just the ground floor), 20mm stone benchtops throughout the kitchen, laundry, and bathrooms, and a fully tiled concrete slab for your alfresco. We even include the finishing touches like fly screens, LED downlights, mirrored sliding robes with drawers, and premium Fisher & Paykel appliances. Don’t get caught out by a “base price” that isn’t real.

View H2 Designer Inclusions

THREE TIERS OF EXCELLENCE

Designed for Your Purpose. Built for Your Life.

We’ve simplified our inclusion levels to match your specific goals, ensuring you never pay for what you don’t need.

  • H1 Smart: The ultimate cost-effective solution, perfect for investors seeking durability and value without compromising quality.

  • H2 Designer: Our most popular choice for owner-occupiers. A comprehensive package featuring the premium finishes you actually want, included as standard.

  • H3 Luxury: For those who want it all. High-end indulgence, top-tier fixtures, and a finish that rivals any custom home.

THE TRUTH ABOUT PRICING

Confused by Quotes?
Let Me Compare Them.

It is incredibly difficult to compare builder quotes side-by-side. One might look cheaper but excludes site costs, flooring, alfresco slabs, or driveways. Another might miss essential electrical upgrades. If you have a quote from another builder, send it to me.

I will provide a free, no-obligation comparison against a Hudson Homes equivalent. I’ll highlight exactly what is missing from their quote and show you what the ‘real’ finished cost will look like, ensuring you have a complete picture before you sign anything.

Request a Quote Comparison