Marigold

Multi-Gen Luxury, Configured Your Way.

The ultimate solution for modern family dynamics.

A layout designed to accommodate every family configuration: choose the Marigold 26 for a private ground-floor master suite, or step up to the 28, 31, or 35 for the functionality of generational living, featuring a grand master upstairs and a full guest suite on the ground floor.

Perfect for multi-generational living or older teens. Use this adaptable design as your base, and let’s fine-tune the layout to fit your family perfectly.

Select Floor Plan Size

26
28
31
35

Marigold 26

4
2.5
2

Marigold 28

4
2.5
2

Marigold 31

5
3.5
2

Marigold 35

5
3.5
2

House dimensions

House Area 243.55m²
House Length 19.43m
House Width 9.71m

House dimensions

House Area 262.44m²
House Length 18.11m
House Width 10.79m

House dimensions

House Area 289.41m²
House Length 17.75m
House Width 11.27m

House dimensions

House Area 324.91m²
House Length 20.39m
House Width 11.27m
House Type Double Storey
House Type Double Storey
House Type Double Storey
House Type Double Storey
Marigold 26 Home Design Floor Plan
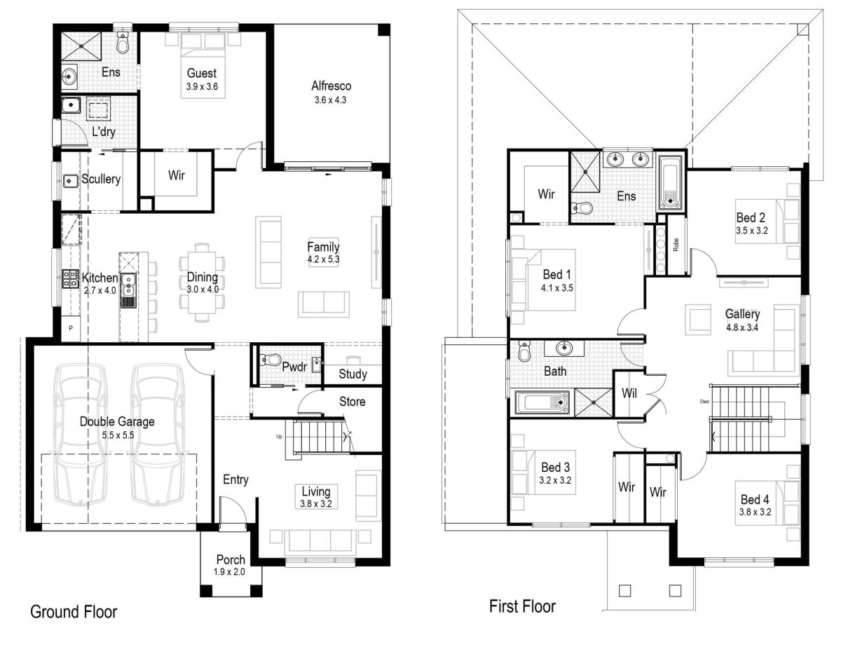
Marigold 28 Home Design Floor Plan
Marigold 31 Home Design Floor Plan
Marigold 35 Home Design Floor Plan

STANDARD INCLUSIONS, NOT "STANDARD UPGRADES"

The "Little" Things That Cost Big Elsewhere.

Many builders keep their base prices low by stripping out the essentials, only to charge you for them later. We believe your home should be liveable from day one. That’s why our ‘H2 Designer’ inclusions package comes standard with features others classify as upgrades.

Enjoy 2590mm ceilings on ‘both’ levels (not just the ground floor), 20mm stone benchtops throughout the kitchen, laundry, and bathrooms, and a fully tiled concrete slab for your alfresco. We even include the finishing touches like fly screens, LED downlights, mirrored sliding robes with drawers, and premium Fisher & Paykel appliances. Don’t get caught out by a “base price” that isn’t real.

View H2 Designer Inclusions

THREE TIERS OF EXCELLENCE

Designed for Your Purpose. Built for Your Life.

We’ve simplified our inclusion levels to match your specific goals, ensuring you never pay for what you don’t need.

  • H1 Smart: The ultimate cost-effective solution, perfect for investors seeking durability and value without compromising quality.

  • H2 Designer: Our most popular choice for owner-occupiers. A comprehensive package featuring the premium finishes you actually want, included as standard.

  • H3 Luxury: For those who want it all. High-end indulgence, top-tier fixtures, and a finish that rivals any custom home.

THE TRUTH ABOUT PRICING

Confused by Quotes?
Let Me Compare Them.

It is incredibly difficult to compare builder quotes side-by-side. One might look cheaper but excludes site costs, flooring, alfresco slabs, or driveways. Another might miss essential electrical upgrades. If you have a quote from another builder, send it to me.

I will provide a free, no-obligation comparison against a Hudson Homes equivalent. I’ll highlight exactly what is missing from their quote and show you what the ‘real’ finished cost will look like, ensuring you have a complete picture before you sign anything.

Request a Quote Comparison