Cobalt

Mastering the Side-Sloping Block

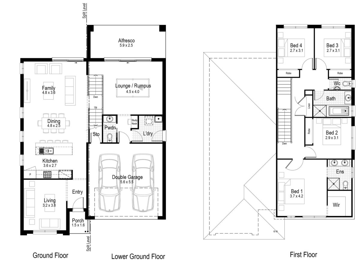
Engineered for land that slopes from left-to-right or right-to-left. The Cobalt utilizes a strategic split in the slab to follow your land's natural gradient, allowing you to build a stunning, cost-effective slab-on-ground home on sites other builders often deem "too difficult" or requiring expensive pole construction.

Enquire now to begin using this professionally designed footprint as your base and tailor it to your lifestyle.

Select Floor Plan Size

22
26
30
36

Cobalt 22

4
2.5
2

Cobalt 26

4
2.5
2

Cobalt 30

4
2.5
2

Cobalt 36

4
3
2

House dimensions

House Area 202.63m²
House Length 15.09m
House Width 10.55m

House dimensions

House Area 242.03m²
House Length 15.95m
House Width 11.03m

House dimensions

House Area 278.98m²
House Length 19.65m
House Width 11.03m

House dimensions

House Area 332.6m²
House Length 20.75m
House Width 11.99m
House Type Split Level
House Type Split Level
House Type Split Level
House Type Split Level
Cobalt 22 Standard 1 Scaled
Cobalt 26 Standard 1 Scaled
Cobalt 30 Standard 1 Scaled
Cobalt 36 Classic Floorplan

STANDARD INCLUSIONS, NOT "STANDARD UPGRADES"

The "Little" Things We Include, That Cost Big Elsewhere.

Many builders keep their base prices low by stripping out the essentials, only to charge you for them later. We believe your home should be liveable from day one. That’s why our ‘H2 Designer’ inclusions package comes standard with features others classify as upgrades.

Enjoy 2590mm ceilings on ‘both’ levels (not just the ground floor), 20mm stone benchtops throughout the kitchen, laundry, and bathrooms, and a fully tiled concrete slab for your alfresco. We even include the finishing touches like fly screens, LED downlights, mirrored sliding robes with drawers, and premium Fisher & Paykel appliances. Don’t get caught out by a “base price” that isn’t real.

View H2 Designer Inclusions

THREE TIERS OF EXCELLENCE

Designed for Your Purpose. Built for Your Life.

We’ve simplified our inclusion levels to match your specific goals, ensuring you never pay for what you don’t need.

  • H1 Smart: The ultimate cost-effective solution, perfect for investors seeking durability and value without compromising quality.

  • H2 Designer: Our most popular choice for owner-occupiers. A comprehensive package featuring the premium finishes you actually want, included as standard.

  • H3 Luxury: For those who want it all. High-end indulgence, top-tier fixtures, and a finish that rivals any custom home.

THE TRUTH ABOUT PRICING

Confused by Quotes?
Let Me Compare Them.

It is incredibly difficult to compare builder quotes side-by-side. One might look cheaper but excludes site costs, flooring, alfresco slabs, or driveways. Another might miss essential electrical upgrades. If you have a quote from another builder, send it to me.

I will provide a free, no-obligation comparison against a Hudson Homes equivalent. I’ll highlight exactly what is missing from their quote and show you what the ‘real’ finished cost will look like, ensuring you have a complete picture before you sign anything.

Request a Quote Comparison