Cinnamon

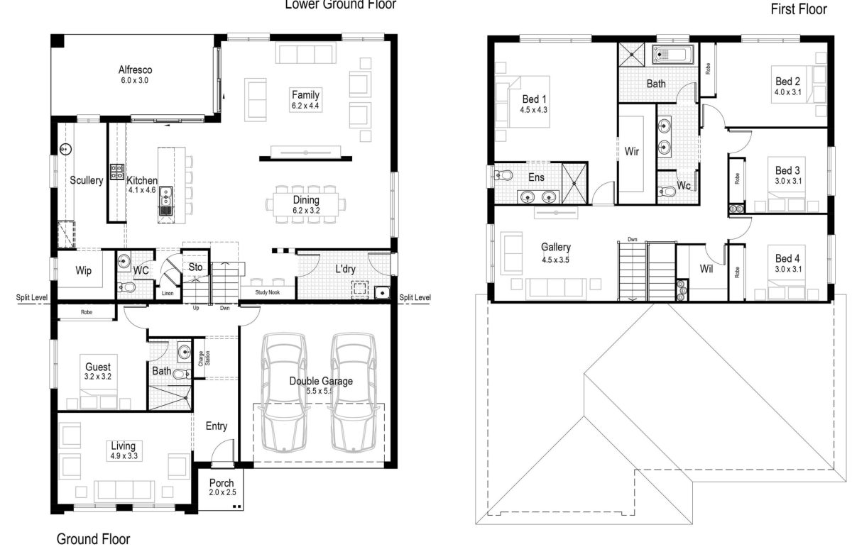
The Smart Solution for Downward Sloping Blocks

Specifically crafted for land that slopes away from the street. The Cinnamon works with your block rather than against it, keeping the garage close to street level while splitting the rear into a lower and upper two storey design, delivering a spacious family home that minimises expensive earthworks and retaining walls.

Enquire now to begin using this professionally designed footprint as your base and tailor it to your lifestyle.

Select Floor Plan Size

23
26
30
36

Cinnamon 23

4
2.5
2

Cinnamon 26

4
2.5
2

Cinnamon 30

4
3
2

Cinnamon 36

5
3.5
2

House dimensions

House Area 218.03m²
House Length 14.87m
House Width 10.91m

House dimensions

House Area 237.61m²
House Length 16.77m
House Width 11.15m

House dimensions

House Area 275.83m²
House Length 17.63m
House Width 11.99m

House dimensions

House Area 338.87m²
House Length 17.63m
House Width 12.71m
House Type Split Level
House Type Split Level
House Type Split Level
House Type Split Level
Cinnamon 23 Standard Scaled
Cinnamon 26 Standard 1 Scaled
Cinnamon 30 Standard 1 Scaled
Cinnamon 36 Standard 1 Scaled

STANDARD INCLUSIONS, NOT "STANDARD UPGRADES"

The "Little" Things We Include, That Cost Big Elsewhere.

Many builders keep their base prices low by stripping out the essentials, only to charge you for them later. We believe your home should be liveable from day one. That’s why our ‘H2 Designer’ inclusions package comes standard with features others classify as upgrades.

Enjoy 2590mm ceilings on ‘both’ levels (not just the ground floor), 20mm stone benchtops throughout the kitchen, laundry, and bathrooms, and a fully tiled concrete slab for your alfresco. We even include the finishing touches like fly screens, LED downlights, mirrored sliding robes with drawers, and premium Fisher & Paykel appliances. Don’t get caught out by a “base price” that isn’t real.

View H2 Designer Inclusions

THREE TIERS OF EXCELLENCE

Designed for Your Purpose. Built for Your Life.

We’ve simplified our inclusion levels to match your specific goals, ensuring you never pay for what you don’t need.

  • H1 Smart: The ultimate cost-effective solution, perfect for investors seeking durability and value without compromising quality.

  • H2 Designer: Our most popular choice for owner-occupiers. A comprehensive package featuring the premium finishes you actually want, included as standard.

  • H3 Luxury: For those who want it all. High-end indulgence, top-tier fixtures, and a finish that rivals any custom home.

THE TRUTH ABOUT PRICING

Confused by Quotes?
Let Me Compare Them.

It is incredibly difficult to compare builder quotes side-by-side. One might look cheaper but excludes site costs, flooring, alfresco slabs, or driveways. Another might miss essential electrical upgrades. If you have a quote from another builder, send it to me.

I will provide a free, no-obligation comparison against a Hudson Homes equivalent. I’ll highlight exactly what is missing from their quote and show you what the ‘real’ finished cost will look like, ensuring you have a complete picture before you sign anything.

Request a Quote Comparison