Champagne

Grand Scale Living, Tailored to You.

The ultimate in double-storey luxury.
This design is a popular foundation for large families, we frequently modify this plan to add a 6th bedroom or guest suite downstairs. Consider this layout your starting point, and let's configure it to match your specific lifestyle.

Select Floor Plan Size

41
45
50
58

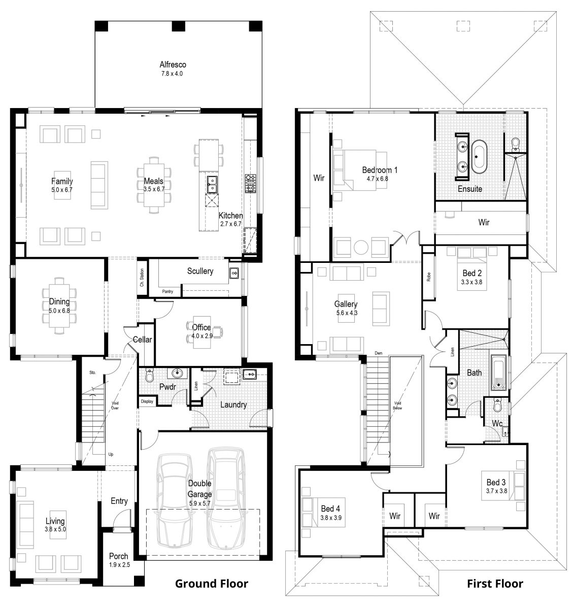
Champagne 41

4
2.5
2

Champagne 45

4
2.5
2

Champagne 50

4
2.5
2

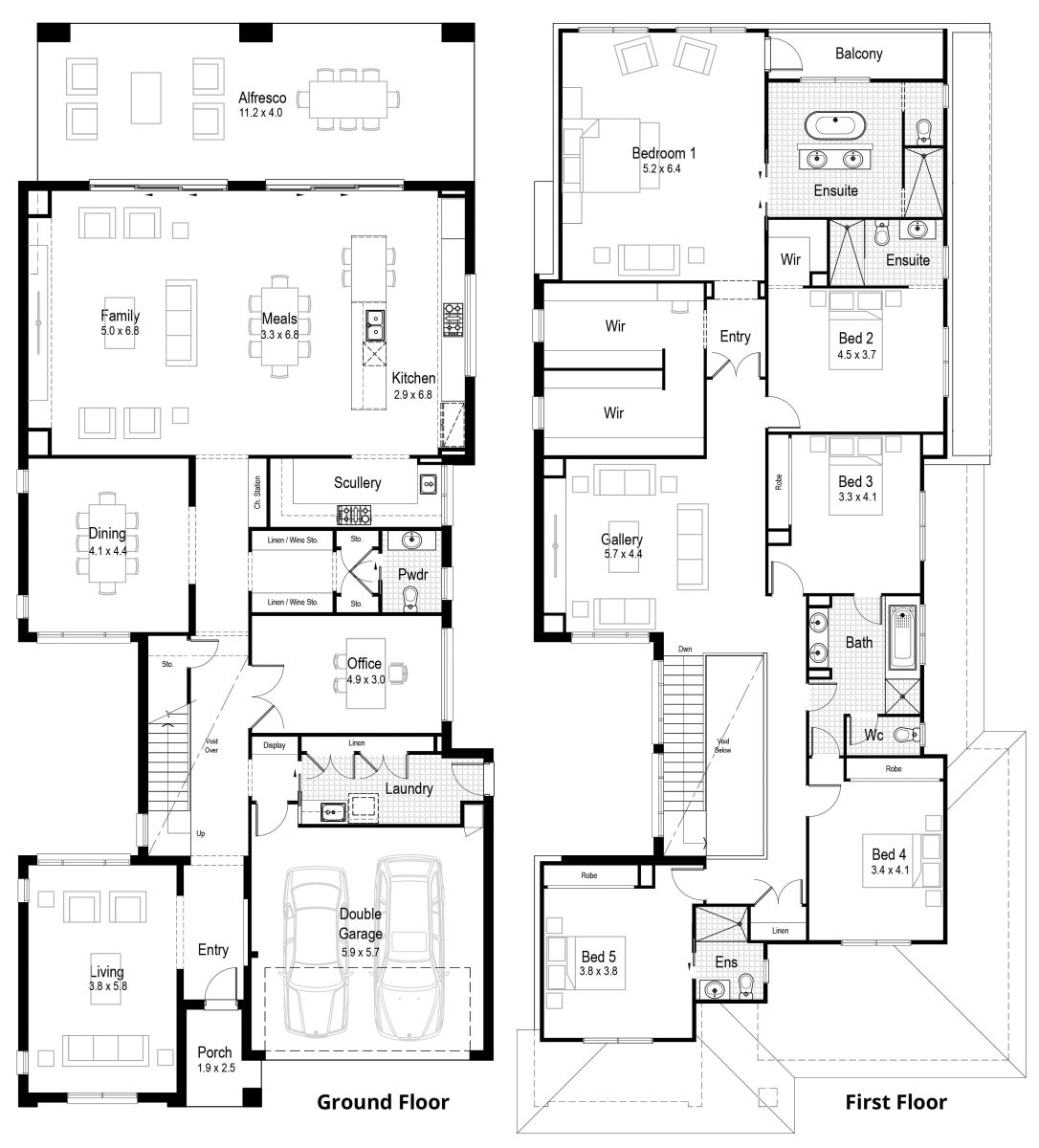
Champagne 58

5
4.5
2

House dimensions

House Area 380.55m²
House Length 22.79m
House Width 12.23m

House dimensions

House Area 419.96m²
House Length 24.35m
House Width 12.23m

House dimensions

House Area 467.88m²
House Length 26.39m
House Width 12.23m

House dimensions

House Area 538.05m²
House Length 27.95m
House Width 12.23m
House Type Double Storey
House Type Double Storey
House Type Double Storey
House Type Double Storey
Champagne 41 Home Design Floor Plan
Champagne 45 Home Design Floor Plan
Champagne 50 Home Design Floor Plan
Champagne 58 Home Design Floor Plan

STANDARD INCLUSIONS, NOT "STANDARD UPGRADES"

The "Little" Things That Cost Big Elsewhere.

Many builders keep their base prices low by stripping out the essentials, only to charge you for them later. We believe your home should be liveable from day one. That’s why our ‘H2 Designer’ inclusions package comes standard with features others classify as upgrades.

Enjoy 2590mm ceilings on ‘both’ levels (not just the ground floor), 20mm stone benchtops throughout the kitchen, laundry, and bathrooms, and a fully tiled concrete slab for your alfresco. We even include the finishing touches like fly screens, LED downlights, mirrored sliding robes with drawers, and premium Fisher & Paykel appliances. Don’t get caught out by a “base price” that isn’t real.

View H2 Designer Inclusions

THREE TIERS OF EXCELLENCE

Designed for Your Purpose. Built for Your Life.

We’ve simplified our inclusion levels to match your specific goals, ensuring you never pay for what you don’t need.

  • H1 Smart: The ultimate cost-effective solution, perfect for investors seeking durability and value without compromising quality.

  • H2 Designer: Our most popular choice for owner-occupiers. A comprehensive package featuring the premium finishes you actually want, included as standard.

  • H3 Luxury: For those who want it all. High-end indulgence, top-tier fixtures, and a finish that rivals any custom home.

THE TRUTH ABOUT PRICING

Confused by Quotes?
Let Me Compare Them.

It is incredibly difficult to compare builder quotes side-by-side. One might look cheaper but excludes site costs, flooring, alfresco slabs, or driveways. Another might miss essential electrical upgrades. If you have a quote from another builder, send it to me.

I will provide a free, no-obligation comparison against a Hudson Homes equivalent. I’ll highlight exactly what is missing from their quote and show you what the ‘real’ finished cost will look like, ensuring you have a complete picture before you sign anything.

Request a Quote Comparison