Carolina

Big Living on a Smarter Footprint.

Don't compromise on lifestyle just because of your block width.
This design maximises every square metre. If you have specific easements or setbacks, we can tweak this footprint to ensure a perfect, compliant fit for your land.

Select Floor Plan Size

22
24
26
29

Carolina 22

3
2.5
2

Carolina 24

4
2.5
2

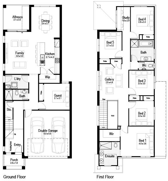
Carolina 26

5
2.5
2

Carolina 29

6
3
2

House dimensions

House Area 202.58m²
House Length 16.55m
House Width 8.27m

House dimensions

House Area 222.48m²
House Length 16.55m
House Width 8.27m

House dimensions

House Area 242.63m²
House Length 19.77m
House Width 8.27m

House dimensions

House Area 266.7m²
House Length 19.79m
House Width 8.27m
House Type Double Storey
House Type Double Storey
House Type Double Storey
House Type Double Storey
Carolina 22 Home Design Floor Plan
Carolina 24 Home Design Floor Plan
Carolina 26 Home Design Floor Plan
Carolina 29 Home Design Floor Plan

STANDARD INCLUSIONS, NOT "STANDARD UPGRADES"

The "Little" Things That Cost Big Elsewhere.

Many builders keep their base prices low by stripping out the essentials, only to charge you for them later. We believe your home should be liveable from day one. That’s why our ‘H2 Designer’ inclusions package comes standard with features others classify as upgrades.

Enjoy 2590mm ceilings on ‘both’ levels (not just the ground floor), 20mm stone benchtops throughout the kitchen, laundry, and bathrooms, and a fully tiled concrete slab for your alfresco. We even include the finishing touches like fly screens, LED downlights, mirrored sliding robes with drawers, and premium Fisher & Paykel appliances. Don’t get caught out by a “base price” that isn’t real.

View H2 Designer Inclusions

THREE TIERS OF EXCELLENCE

Designed for Your Purpose. Built for Your Life.

We’ve simplified our inclusion levels to match your specific goals, ensuring you never pay for what you don’t need.

  • H1 Smart: The ultimate cost-effective solution, perfect for investors seeking durability and value without compromising quality.

  • H2 Designer: Our most popular choice for owner-occupiers. A comprehensive package featuring the premium finishes you actually want, included as standard.

  • H3 Luxury: For those who want it all. High-end indulgence, top-tier fixtures, and a finish that rivals any custom home.

THE TRUTH ABOUT PRICING

Confused by Quotes?
Let Me Compare Them.

It is incredibly difficult to compare builder quotes side-by-side. One might look cheaper but excludes site costs, flooring, alfresco slabs, or driveways. Another might miss essential electrical upgrades. If you have a quote from another builder, send it to me.

I will provide a free, no-obligation comparison against a Hudson Homes equivalent. I’ll highlight exactly what is missing from their quote and show you what the ‘real’ finished cost will look like, ensuring you have a complete picture before you sign anything.

Request a Quote Comparison