Burgundy

Elevate Your Lifestyle.

Enjoy the luxury of space with separate upstairs and downstairs zones. Remember, nothing is set in stone, whether you want to add a void, move the guest suite, or resize the garage, we can customize this design to be your forever home.

Select Floor Plan Size

27
30
32
34

Burgundy 27

4
2.5
2

Burgundy 30

4
2
2

Burgundy 32

5
3
2

Burgundy 34

4
2.5
2

House dimensions

House Area 252.01m²
House Length 17.15m
House Width 10.91m

House dimensions

House Area 277.51m²
House Length 18.35m
House Width 11.15m

House dimensions

House Area 298.12m²
House Length 18.95m
House Width 11.15m

House dimensions

House Area 317.03m²
House Length 20.03m
House Width 11.15m
House Type Double Storey
House Type Double Storey
House Type Double Storey
House Type Double Storey
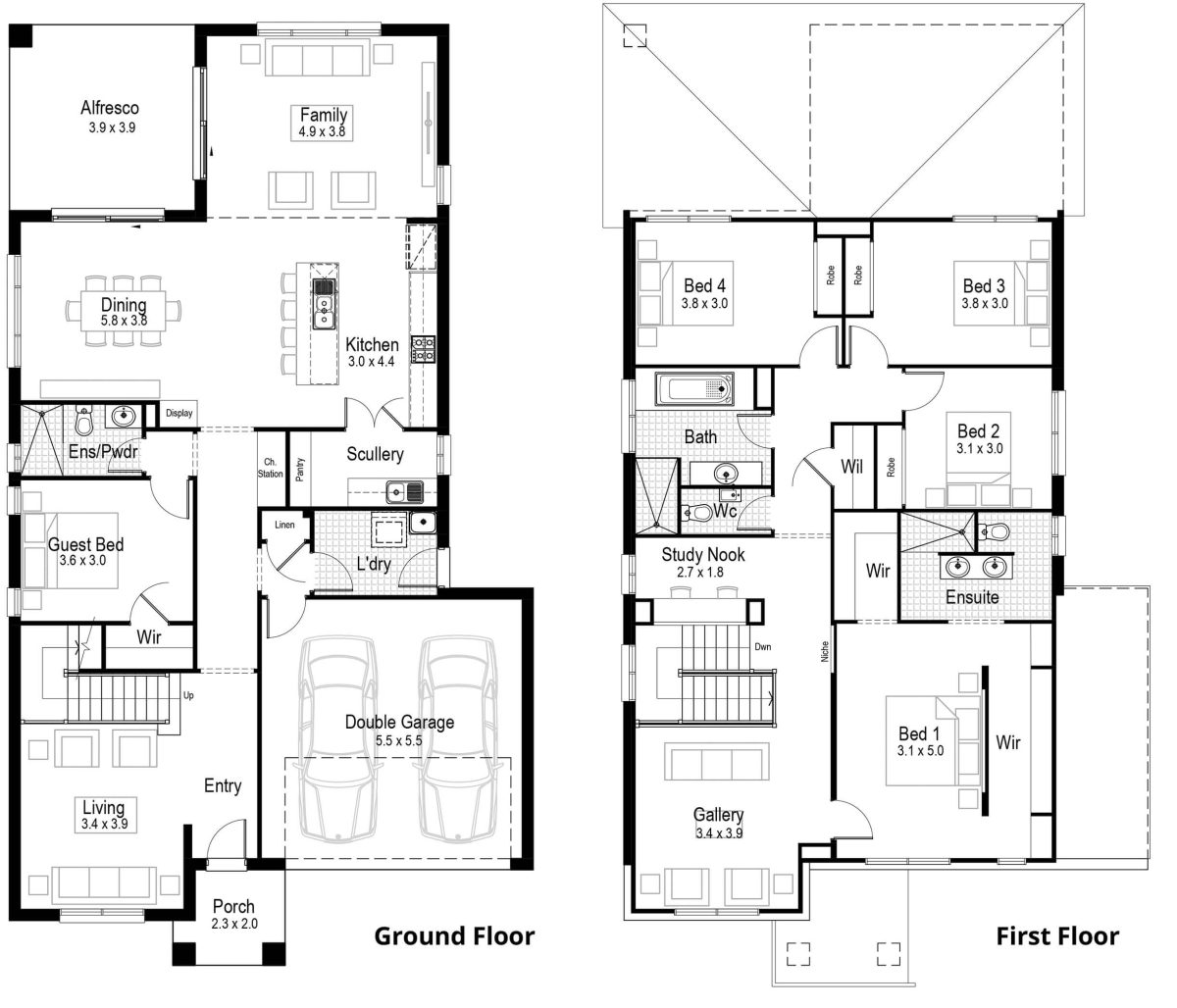
Burgundy 27 Home Design Floor Plan
Burgundy 30 Home Design Floor Plan
Burgundy 32 Home Design Floor Plan
Burgundy 34 Home Design Floor Plan

STANDARD INCLUSIONS, NOT "STANDARD UPGRADES"

The "Little" Things That Cost Big Elsewhere.

Many builders keep their base prices low by stripping out the essentials, only to charge you for them later. We believe your home should be liveable from day one. That’s why our ‘H2 Designer’ inclusions package comes standard with features others classify as upgrades.

Enjoy 2590mm ceilings on ‘both’ levels (not just the ground floor), 20mm stone benchtops throughout the kitchen, laundry, and bathrooms, and a fully tiled concrete slab for your alfresco. We even include the finishing touches like fly screens, LED downlights, mirrored sliding robes with drawers, and premium Fisher & Paykel appliances. Don’t get caught out by a “base price” that isn’t real.

View H2 Designer Inclusions

THREE TIERS OF EXCELLENCE

Designed for Your Purpose. Built for Your Life.

We’ve simplified our inclusion levels to match your specific goals, ensuring you never pay for what you don’t need.

  • H1 Smart: The ultimate cost-effective solution, perfect for investors seeking durability and value without compromising quality.

  • H2 Designer: Our most popular choice for owner-occupiers. A comprehensive package featuring the premium finishes you actually want, included as standard.

  • H3 Luxury: For those who want it all. High-end indulgence, top-tier fixtures, and a finish that rivals any custom home.

THE TRUTH ABOUT PRICING

Confused by Quotes?
Let Me Compare Them.

It is incredibly difficult to compare builder quotes side-by-side. One might look cheaper but excludes site costs, flooring, alfresco slabs, or driveways. Another might miss essential electrical upgrades. If you have a quote from another builder, send it to me.

I will provide a free, no-obligation comparison against a Hudson Homes equivalent. I’ll highlight exactly what is missing from their quote and show you what the ‘real’ finished cost will look like, ensuring you have a complete picture before you sign anything.

Request a Quote Comparison