Azure

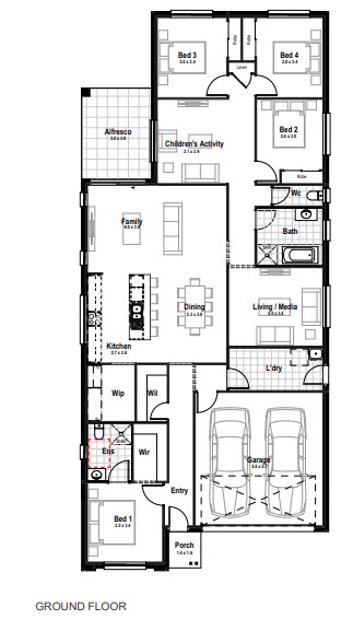
Multiple Living Zones on a 12.5m Block.

Rare to find on modern blocks, the Azure delivers multiple separate living areas fitting on a standard 12.5m frontage, ensuring everyone has room to relax without being on top of each other.

Flexible to its core, the standard 3 and 4-bedroom layouts are perfect for families who value entertainment space. Need max accommodation? We can easily convert the Media or Activity zones to create a 5 or even 6-bedroom home.

Experience the space first hand: visit the stunning Azure 25 on display at Bahrs Scrub.
Use this efficient footprint as your base, and let's tailor the layout to your family.
*Note: Azure 21 requires a 12.83m block width minimum.

Select Floor Plan Size

19
21
23
25

Azure 19

3
2
2

Azure 21

4
2
2

Azure 23

4
2
2

Azure 25

4
2
2

House dimensions

House Area 177.08m²
House Length 17.51m
House Width 10.55m

House dimensions

House Area 197.08m²
House Length 18.95m
House Width 11.03m

House dimensions

House Area 208.71m²
House Length 21.47m
House Width 10.55m

House dimensions

House Area 235.44m²
House Length 24.01m
House Width 10.62m
House Type Single Storey
House Type Single Storey
House Type Single Storey
House Type Single Storey
Azure19 Standard 1
Azure21 Stanard 1
Azure23 Standard 1 Scaled
Azure 25 Home Design Hudson Homes

STANDARD INCLUSIONS, NOT "STANDARD UPGRADES"

The "Little" Things We Include, That Cost Big Elsewhere.

Many builders keep their base prices low by stripping out the essentials, only to charge you for them later. We believe your home should be liveable from day one. That’s why our ‘H2 Designer’ inclusions package comes standard with features others classify as upgrades.

Enjoy 2590mm ceilings on ‘both’ levels (not just the ground floor), 20mm stone benchtops throughout the kitchen, laundry, and bathrooms, and a fully tiled concrete slab for your alfresco. We even include the finishing touches like fly screens, LED downlights, mirrored sliding robes with drawers, and premium Fisher & Paykel appliances. Don’t get caught out by a “base price” that isn’t real.

View H2 Designer Inclusions

THREE TIERS OF EXCELLENCE

Designed for Your Purpose. Built for Your Life.

We’ve simplified our inclusion levels to match your specific goals, ensuring you never pay for what you don’t need.

  • H1 Smart: The ultimate cost-effective solution, perfect for investors seeking durability and value without compromising quality.

  • H2 Designer: Our most popular choice for owner-occupiers. A comprehensive package featuring the premium finishes you actually want, included as standard.

  • H3 Luxury: For those who want it all. High-end indulgence, top-tier fixtures, and a finish that rivals any custom home.

THE TRUTH ABOUT PRICING

Confused by Quotes?
Let Me Compare Them.

It is incredibly difficult to compare builder quotes side-by-side. One might look cheaper but excludes site costs, flooring, alfresco slabs, or driveways. Another might miss essential electrical upgrades. If you have a quote from another builder, send it to me.

I will provide a free, no-obligation comparison against a Hudson Homes equivalent. I’ll highlight exactly what is missing from their quote and show you what the ‘real’ finished cost will look like, ensuring you have a complete picture before you sign anything.

Request a Quote Comparison